Дома под ключ в Пушкино
Отзывы из Яндекс Карт
4.9
84 отзывов
Дополнительные услуги 88%
2 154 оценок
Комплектации 89%
1 535 оценок
Планировки 90%
2 484 оценок
Проекты 93%
2 231 оценок
С
Вилен Ткачёв17.01.2025 г.
Очень доволен сотрудничеством с вашей фирмой, выбрал каркасный дом для постоянного проживания и ни разу не пожалел. Отдельная благодарность прорабу Дмитрию за его внимательное отношение ко всем моим пожеланиям и за его способность быстро решать любые возникающие вопросы. Дом получился теплым, уютным и невероятно красивым.
Отзывы из Google Карт
4.8
51 отзывов
Дополнительные услуги 88%
2 154 оценок
Комплектации 89%
1 535 оценок
Планировки 90%
2 484 оценок
Проекты 93%
2 231 оценок
С
Костя Исаев02.05.2025 г.
Даже мои соседи, которые обычно ко всему относятся скептически, были вынуждены признать, что дом собран просто безупречно, и теперь расспрашивают меня о вашей компании.
Отзывы из 2гис
4.9
33 отзывов
Дополнительные услуги 88%
2 154 оценок
Комплектации 89%
1 535 оценок
Планировки 90%
2 484 оценок
Проекты 93%
2 231 оценок
С
Артемий Долгов05.08.2025 г.
Спасибо за качественную работу и терпение. Я часто звонил уточнял разные моменты мне всегда подробно всё объясняли. Баню построили просто замечательную.


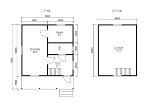
Проект №18 Дом с террасой 7,5х6

каркас из строганой доски
Создайте свой план для этого проекта
и отправьте его нам на расчет в один клик.
Каркасный дом (150 мм) 6х7,5 Толщина утепления 150 мм 1760700 Заказать
Каркасный дом (200 мм) 6х7,5 Толщина утепления 200 мм 1920700 Заказать

Чтобы подстроить под себя готовые проекты и получить свою уникальную планировку, пользуйтесь нашим планировщиком.

С использованием планировщика можно создавать эскизы, планы, чертежи, схемы уникального дома с мансардой, эркером, с требуемым количеством комнат. В конечном итоге вы сможете получить проект с планировкой, который 100% отвечает вашим условиям.

Вы можете подобрать определенный вид кровли. Вашу крышу можно сделать двускатной, четырехскатной и вальмовой. Двухскатную считают самой востребованной в не очень больших постройках.

Самые популярные на данный момент размеры домов и коттеджей: мини - до 50 кв. М (в основном, 1-этажные дома); компактные - от 70 до 100 квадратных метров (обычно 2-этажные); большие - от 150м2 и более.

Можем предложить дуплексы - большие каркасные дома с 2-мя входами на 2 семьи. Дома предполагаются для двух хозяев, они разделены на две части, для каждой половины с отдельным входом.


Наши работы

Перейти в галерею


Комплектация

Площадь застройки: 45 м2
Длина: 7.5 м
Ширина: 6 м
Общая площадь: 58.82 м2
Исполнение Под ключ (с отделкой)
Фундамент Свайно-винтовой или ж/б сваи (рассчитываются отдельно).
Гидроизоляция фундамента Рубероид в два слоя.
Основание (обвязка) Из обрезного бруса 150х150 мм. 150х200 мм. согласно выбранной толщине утепления. Торцевая доска строганая 45х145/45х195+/-5 мм. согласно выбранной толщине утепления. Обработка антисептиком.
Цокольное перекрытие Строганая доска камерной сушки 45х145/45х195+/-5 мм. с шагом 590 мм. Обработка антисептиком.
Пол черновой Обрезная доска камерной сушки 20х100 мм.
Влаго-ветрозащита чернового пола Мембрана Ондутис А100.
Внешние стены Стойки каркаса из строганой доски камерной сушки 45х145/45х195+/-5 мм. с шагом 590 мм. Верхняя двойная и нижняя обвязки из строганой доски камерной сушки 45х145/45х195+/-5 мм. Разгрузочный ригель из строганой доски 45х145+/-5 мм. Укосины из строганой доски 20х95 мм.
Перегородки Стойки каркаса из строганой доски камерной сушки 45х95+/-5 мм. с шагом 590 мм. Верхняя двойная и нижняя обвязки из строганой доски 45х95+/-5 мм. Разгрузочный ригель из строганой доски камерной сушки 45х145+/-5 мм. Укосины из строганой доски камерной сушки 20х95 мм.
Сборка каркаса На гвозди.
Высота от пола до потолка Дом одноэтажный: 2,5 м. Дом с мансардой: 1-ый этаж- 2,5 м.
2-ой этаж (мансарда)- 2,3 м.
Дом в полтора и два этажа:
1-ый этаж 2,5 м.
2-ой этаж 2,4 м. в полутораэтажном доме
2,5 м. в двухэтажном доме.
Внешняя отделка стен Имитация бруса камерной сушки, сорт АВ, толщиной 17 мм. Монтаж через строганый брусок камерной сушки 45х45+/-5 мм. (вентилируемый фасад). Влаго-ветрозащитная мембрана- Ондутис А100.
Внутренняя отделка стен, перегородок Евровагонка камерной сушки, сорт АВ, толщиной 12,5 мм. по строганой рейке 20х40+/-5 мм. либо ГКЛ 12,5 мм.
Отделка потолка Евровагонка камерной сушки, сорт АВ толщиной, 12,5 мм. по строганой рейке 20х40+/-5 мм. либо ГКЛ 12,5 мм.
Пол чистовой Шпунтованная доска камерной сушки толщиной 35-36 мм. сорт АВ. по строганой рейке 20х40+/-5 мм. либо шпунтованная ДСП 16 мм. по разряженной обрешётке из строганой доски камерной сушки 20х95+/-5 мм.
Утепление (пол, потолок) Минеральная вата Knauf 150/200 мм. согласно выбранной толщине утепления.
Утепление стен Плитный утеплитель Rockwool, толщиной 150/200 мм. согласно выбранной толщине утепления.
Звукоизоляция перегородок Плитный утеплитель Rockwool, толщиной 100 мм.
Пароизоляция (стены, перегородки, пол, потолок) Плёнка Ондутис R70. Дополнительная герметизация нахлёстов/примыканий пароизоляционной плёнки клейкой лентой Delta.
Окна Двухкамерные стеклопакеты ПВХ белого цвета, профиль 60 мм. В комплекте: отливы, подоконники, москитные сетки.
Двери Входная- металлическая, утеплённая (Россия). Межкомнатные- филёнчатые.
Наличники на окна и двери Наличник деревянный, строганый, камерной сушки 70-90 мм. с двух сторон.
Лестница (при наличии второго этажа) Деревянная, одно или двухмаршевая. Перила- заводские резные, балясины- заводские точеные, устанавливаются стартовые точёные столбы. Ступени 40х200 мм. Тетива лестницы- 90х140 мм.
Крыша Двускатная, ломаная или вальмовая в соответствии с проектом.
Стропильная система Выполнена из строганой доски камерной сушки 45х145/45х195+/-5 мм. Шаг установки стропил 590 мм.
Обрешётка Выполняется из строганой доски камерной сушки толщиной 20х95+/-5 мм. Шаг крепления обрешетки 350 мм. Контробрешётка выполняется из строганого бруска камерной сушки 45х45+/-5 мм. Крепится по стропилам (вентиляционный зазор).
Подкровельная мембрана Ондутис А100
Кровельное покрытие (на выбор) Металлочерепица 0,45 мм. Цвет на выбор.
Фронтоны (при наличии) Каркас из строганой доски камерной сушки 45х145/45х195+/-5 мм. Обшиваются имитацией бруса камерной сушки, сорт АВ, толщиной 17 мм. Монтаж через строганый брусок камерной сушки 45х45+/-5 мм. (вентилируемый фасад). Влаго-ветрозащитная мембрана- Ондутис А100. Монтаж вентиляционных решёток.
Свесы крыши Ширина 400 мм. Подшиваются вагонкой камерной сушки, сорт АВ.
Терраса/балкон (при наличии) Устанавливаются опорные столбы из строганного бруса камерной сушки 140х140 мм.
Отделка потолка террасы/балкона Евровагонка камерной сушки толщиной 12,5 мм. сорт АВ.
Пол террасы/балкона Шпунтованная доска камерной сушки толщиной 35-36 мм. сорт АВ.
Ограждение террасы/балкона Перила- строганая доска. Балясины- точеные, фигурные. Либо ограждение в скандинавском стиле. Устанавливаются ступени у входа.
Допуск на геометрические параметры Составляет +/- 50 мм по длине с каждой стороны.
Допускается стыковка имитации бруса, вагонки и половой доски По всему периметру стен дома (если ширина и длина дома более 6,0 метров). Вагонки и доски пола в каждой отдельной комнате.
Допуски по имитации бруса, вагонке, доске +/- 5 мм.
В стоимость включена Доставка комплекта материала в радиусе 500 км. от г. Пестова Новгородской области и сборка дома на вашем участке.
Гарантия 5 лет.
Бытовка строительная 2,0х3,0 м. каркасно-щитовая. Стоимость 23000 руб. Остаётся на участке Заказчика.
Туалет 1,0х1,0 м. каркасно-щитовой. Стоимость 12000 руб. Остаётся на участке Заказчика.
Генератор Стоимость аренды на весь срок строительства 15000 руб. ГСМ за счёт Заказчика.

Строительство каркасного дома выполняется в двух видах: полностью под ключ и под усадку, когда сруб будет отстаиваться на протяжении определенного времени.

Зимой эксперты рекомендуют строить дома в холодную погоду, чтобы каркас не успел промокнуть, в летний период - не в дождливую.

Оптимальными для дачи или сада стали домики на винтовых сваях, в нашем каталоге имеются одноэтажные и полуторатажные дома.

Если вы планируете проживать постоянно, рекомендуем очень теплые двухэтажные и одноэтажные дома на плитном и ленточном фундаменте.

Существует два размера утепления: 150 мм и 200 мм. Каркасные дома с толщиной утеплителя 200 миллиметров получаются теплее, но стоят дороже.

Дополнительные услуги


Каркасник маленькой террасой, согласно проекту 18 полутораэтажный с теплой двускатной строительной конструкцией крыши, выделяется экологической чистотой, благодаря использованию стружчатых плит, теплоизоляционной ваты, что гарантирует отменную теплоизоляцию, оптимальный микроклимат в помещении. Нормы дома составляют 6х7,5 м., общая жилая площадь - 58.82 кв.м.. Наша фирма в кратчайшие сроки выстроит каркасный дом по индивидуальному или типовому чертежу в Пушкино в оптимальное для вас время года и на любом виде грунта.

Популярные проекты


Дома из бруса 9х9 Каркасные дома с верандой Двухэтажные каркасные дома
хит продаж
Тип:
Общая площадь: 2
2426200
от 2310700
хит продаж
Тип: с большой террасой
Общая площадь: 2
3066700
от 2920700
хит продаж
Тип:
Общая площадь: 2
1281700
от 1220700
Дома из бруса

Заказать или задать вопрос



Заказать или задать вопрос

Заказать звонок