Проект №88 Каркасный дом 8х10

каркас из строганой доски
Каркасный дом (150 мм) 8х10 Толщина утепления 150 мм 3460700 Заказать
Каркасный дом (200 мм) 8х10 Толщина утепления 200 мм 3670700 Заказать

Чтобы подстроить под себя готовые проекты и получить свою уникальную планировку, пользуйтесь нашим планировщиком.

С использованием планировщика можно создавать эскизы, планы, чертежи, схемы уникального дома с мансардой, эркером, с требуемым количеством комнат. В конечном итоге вы сможете получить проект с планировкой, который 100% отвечает вашим условиям.

Вы можете подобрать определенный вид кровли. Вашу крышу можно сделать двускатной, четырехскатной и вальмовой. Двухскатную считают самой востребованной в не очень больших постройках.

Самые популярные на данный момент размеры домов и коттеджей: мини - до 50 кв. М (в основном, 1-этажные дома); компактные - от 70 до 100 квадратных метров (обычно 2-этажные); большие - от 150м2 и более.

Можем предложить дуплексы - большие каркасные дома с 2-мя входами на 2 семьи. Дома предполагаются для двух хозяев, они разделены на две части, для каждой половины с отдельным входом.


Наши работы

Перейти в галерею


Комплектация

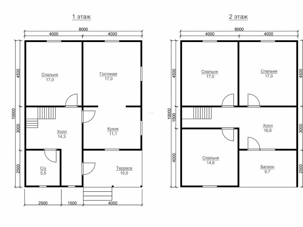
Площадь застройки: 80 м2
Длина: 10 м
Ширина: 8 м
Общая площадь: 138.8 м2
Исполнение Под ключ (с отделкой)
Фундамент Свайно-винтовой или ж/б сваи (рассчитываются отдельно).
Гидроизоляция фундамента Рубероид в два слоя.
Основание (обвязка) Из обрезного бруса 150х150 мм. 150х200 мм. согласно выбранной толщине утепления. Торцевая доска строганая 45х145/45х195+/-5 мм. согласно выбранной толщине утепления. Обработка антисептиком.
Цокольное перекрытие Строганая доска камерной сушки 45х145/45х195+/-5 мм. с шагом 590 мм. Обработка антисептиком.
Пол черновой Обрезная доска камерной сушки 20х100 мм.
Влаго-ветрозащита чернового пола Мембрана Ондутис А100.
Внешние стены Стойки каркаса из строганой доски камерной сушки 45х145/45х195+/-5 мм. с шагом 590 мм. Верхняя двойная и нижняя обвязки из строганой доски камерной сушки 45х145/45х195+/-5 мм. Разгрузочный ригель из строганой доски 45х145+/-5 мм. Укосины из строганой доски 20х95 мм.
Перегородки Стойки каркаса из строганой доски камерной сушки 45х95+/-5 мм. с шагом 590 мм. Верхняя двойная и нижняя обвязки из строганой доски 45х95+/-5 мм. Разгрузочный ригель из строганой доски камерной сушки 45х145+/-5 мм. Укосины из строганой доски камерной сушки 20х95 мм.
Сборка каркаса На гвозди.
Высота от пола до потолка Дом одноэтажный: 2,5 м. Дом с мансардой: 1-ый этаж- 2,5 м.
2-ой этаж (мансарда)- 2,3 м.
Дом в полтора и два этажа:
1-ый этаж 2,5 м.
2-ой этаж 2,4 м. в полутораэтажном доме
2,5 м. в двухэтажном доме.
Внешняя отделка стен Имитация бруса камерной сушки, сорт АВ, толщиной 17 мм. Монтаж через строганый брусок камерной сушки 45х45+/-5 мм. (вентилируемый фасад). Влаго-ветрозащитная мембрана- Ондутис А100.
Внутренняя отделка стен, перегородок Евровагонка камерной сушки, сорт АВ, толщиной 12,5 мм. по строганой рейке 20х40+/-5 мм. либо ГКЛ 12,5 мм.
Отделка потолка Евровагонка камерной сушки, сорт АВ толщиной, 12,5 мм. по строганой рейке 20х40+/-5 мм. либо ГКЛ 12,5 мм.
Пол чистовой Шпунтованная доска камерной сушки толщиной 35-36 мм. сорт АВ. по строганой рейке 20х40+/-5 мм. либо шпунтованная ДСП 16 мм. по разряженной обрешётке из строганой доски камерной сушки 20х95+/-5 мм.
Утепление (пол, потолок) Минеральная вата Knauf 150/200 мм. согласно выбранной толщине утепления.
Утепление стен Плитный утеплитель Rockwool, толщиной 150/200 мм. согласно выбранной толщине утепления.
Звукоизоляция перегородок Плитный утеплитель Rockwool, толщиной 100 мм.
Пароизоляция (стены, перегородки, пол, потолок) Плёнка Ондутис R70. Дополнительная герметизация нахлёстов/примыканий пароизоляционной плёнки клейкой лентой Delta.
Окна Двухкамерные стеклопакеты ПВХ белого цвета, профиль 60 мм. В комплекте: отливы, подоконники, москитные сетки.
Двери Входная- металлическая, утеплённая (Россия). Межкомнатные- филёнчатые.
Наличники на окна и двери Наличник деревянный, строганый, камерной сушки 70-90 мм. с двух сторон.
Лестница (при наличии второго этажа) Деревянная, одно или двухмаршевая. Перила- заводские резные, балясины- заводские точеные, устанавливаются стартовые точёные столбы. Ступени 40х200 мм. Тетива лестницы- 90х140 мм.
Крыша Двускатная, ломаная или вальмовая в соответствии с проектом.
Стропильная система Выполнена из строганой доски камерной сушки 45х145/45х195+/-5 мм. Шаг установки стропил 590 мм.
Обрешётка Выполняется из строганой доски камерной сушки толщиной 20х95+/-5 мм. Шаг крепления обрешетки 350 мм. Контробрешётка выполняется из строганого бруска камерной сушки 45х45+/-5 мм. Крепится по стропилам (вентиляционный зазор).
Подкровельная мембрана Ондутис А100
Кровельное покрытие (на выбор) Металлочерепица 0,45 мм. Цвет на выбор.
Фронтоны (при наличии) Каркас из строганой доски камерной сушки 45х145/45х195+/-5 мм. Обшиваются имитацией бруса камерной сушки, сорт АВ, толщиной 17 мм. Монтаж через строганый брусок камерной сушки 45х45+/-5 мм. (вентилируемый фасад). Влаго-ветрозащитная мембрана- Ондутис А100. Монтаж вентиляционных решёток.
Свесы крыши Ширина 400 мм. Подшиваются вагонкой камерной сушки, сорт АВ.
Терраса/балкон (при наличии) Устанавливаются опорные столбы из строганного бруса камерной сушки 140х140 мм.
Отделка потолка террасы/балкона Евровагонка камерной сушки толщиной 12,5 мм. сорт АВ.
Пол террасы/балкона Шпунтованная доска камерной сушки толщиной 35-36 мм. сорт АВ.
Ограждение террасы/балкона Перила- строганая доска. Балясины- точеные, фигурные. Либо ограждение в скандинавском стиле. Устанавливаются ступени у входа.
Допуск на геометрические параметры Составляет +/- 50 мм по длине с каждой стороны.
Допускается стыковка имитации бруса, вагонки и половой доски По всему периметру стен дома (если ширина и длина дома более 6,0 метров). Вагонки и доски пола в каждой отдельной комнате.
Допуски по имитации бруса, вагонке, доске +/- 5 мм.
В стоимость включена Доставка комплекта материала в радиусе 500 км. от г. Пестова Новгородской области и сборка дома на вашем участке.
Гарантия 5 лет.
Бытовка строительная 2,0х3,0 м. каркасно-щитовая. Стоимость 23000 руб. Остаётся на участке Заказчика.
Туалет 1,0х1,0 м. каркасно-щитовой. Стоимость 12000 руб. Остаётся на участке Заказчика.
Генератор Стоимость аренды на весь срок строительства 15000 руб. ГСМ за счёт Заказчика.

Строительство каркасного дома выполняется в двух видах: полностью под ключ и под усадку, когда сруб будет отстаиваться на протяжении определенного времени.

Зимой эксперты рекомендуют строить дома в холодную погоду, чтобы каркас не успел промокнуть, в летний период - не в дождливую.

Оптимальными для дачи или сада стали домики на винтовых сваях, в нашем каталоге имеются одноэтажные и полуторатажные дома.

Если вы планируете проживать постоянно, рекомендуем очень теплые двухэтажные и одноэтажные дома на плитном и ленточном фундаменте.

Существует два размера утепления: 150 мм и 200 мм. Каркасные дома с толщиной утеплителя 200 миллиметров получаются теплее, но стоят дороже.

Дополнительные услуги


Каркасник балконом и маленькой террасой, согласно проекту 88 полутораэтажный с теплой двускатной строительной конструкцией крыши, выделяется экологической чистотой, благодаря использованию стружчатых плит, теплоизоляционной ваты, что гарантирует отменную теплоизоляцию, оптимальный микроклимат в помещении. Нормы дома составляют 8х10 м., общая жилая площадь - 138.8 кв.м.. Наша фирма в кратчайшие сроки выстроит каркасный дом по индивидуальному или типовому чертежу в Пушкино в оптимальное для вас время года и на любом виде грунта.

Популярные проекты


Дома из бруса 8х9 Дома из бруса более 100 кв.м. Каркасные дома 6х8
хит продаж
Тип:
Общая площадь: 2
2825200
от 2690700
хит продаж
Тип:
Общая площадь: 2
2877700
от 2740700
хит продаж
Тип:
Общая площадь: 2
2604700
от 2480700
Дома из бруса

Заказать или задать вопрос



Заказать или задать вопрос

Заказать звонок